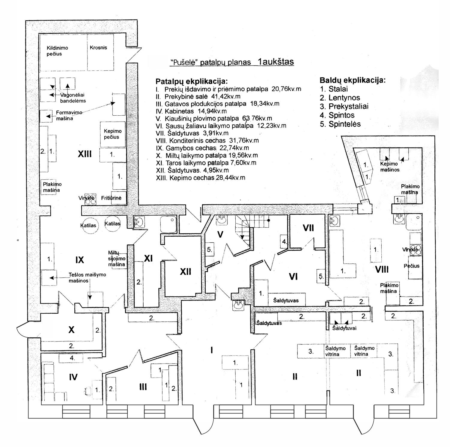
Šiose patalpose daug metų veikė kepinių parduotuvė garsėjusi savo skaniausiais gardumynas. Joje galima įrengti kepinių parduotuve su kavinuke.
Likusi įranga
Patalpose yra likę nemažai senos įrangos kuri gali būti jums naudinga ir galėsite NEMOKAMAI ja naudotis.
Mediniai stalai padengti nerūdijančio plieno skarda
Rašomieji stalai
Stalčių komodos
Lentynos
Vitrininiai šaldytuvai
Šaldymo spintos
Maušyklės


















